Группа компаний НПК «Завод модульного энергооборудования» предлагает купить напольный газовый котел RSА 80 мощностью 80 кВт с доставкой по всей России - благодаря малому размеру Вы сможете поставить его в доме, где он не будет занимать много места, выполняя свои функции, отапливая помещение до 800 м2, есть в наличии на складе!
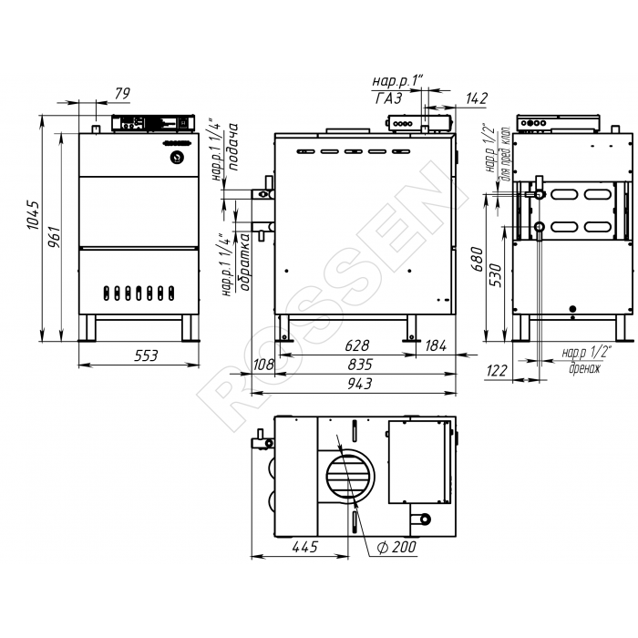
Напольный газовый котел Rossen RSA 80
Преимущества газового котла RS-A80
- Надёжная автоматика - в котлах используется автоматика только проверенных поставщиков. Eurosit, Nova (Италия), Honeywell(США);
- Газовый котел RSA работает на сжиженном и природном газе - универсален в топливе;
- Гарантия - на теплообменник 5 лет;
- Высокий КПД - не менее 93%;
- Малый размер - благодаря миниатюрному размеру котлы удобны для установки в крышных котельных;
- Надежность - использование современных технологий и качественных материалов делает эти котлы надежными и безопасными в работе;
- Высокая скорость циркуляции теплоносителя - позволяет в несколько раз снизить отложения накипи на стенках труб и увеличивает интенсивность теплообмена;
- Максимальный доступ - для обслуживания и осмотра котла как со стороны газовой части, так и внутренних водяных поверхностей.
Краткое описание напольного газового котла RSА 80
Котел RSA 80 - это газовый водогрейный котел с водотрубным теплообменником. Конструкция теплообменника обеспечивает сочетание значительной тепловой мощности и высокого КПД при малых габаритах и небольшом весе.
Водогрейный котел RSA 80 одноконтурный, и предназначен для отопления, приспособлен для установки в котлах наружного размещения, крышных и блочно-модульных котельных.
Котел RSA 80 имеет открытую топку и оборудован атмосферной горелкой. Теплообменник производится на Заводе Rossen, выполнен из оребренных труб с увеличенной поверхностью теплоотдачи.
Гидравлическая схема обвязки и подключения котла RSA 80 к системе отопления
Гидравлическая схема подключения котла RSA по зависимой схеме с применением гидравлического разделителя

Гидравлическая схема подключения котла RSA по зависимой схеме с применением гидравлических перемычек

Гидравлическая схема подключения котла RSA по независимой схеме

Устройство автоматики котла RSA 80 и схема электрических соединений

Модельный ряд газовых котлов Rossen RSA
